Improve
Objective: Improve the design of another student from the “sketch phase” to the “temporary phase”
Location: Lloydkwartier, Rotterdam
Design principles
Ensure that the building complies with the zoning plan of the municipality of Rotterdam.
Extend the dyke to create covered parking
Orient commercial functions towards the sun
Create a courtyard for neighborhood gatherings
Add greenery and garden elements
Situation temporary design fase
Ground-floor sketch phase - made by other student
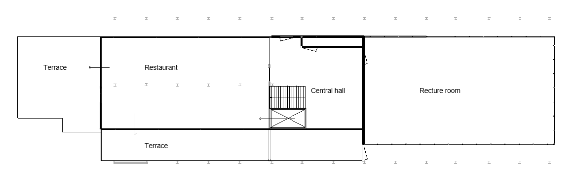
Functional analysis
Changes
Concept
Functional analysis after improvements
inspration coffee place Tokyo
Inspiration old scoula Rotterdam
South east perspective
North west perspective
South east perspective
Temporary design fase
Section vertical
Section horizontal
University
Objective: Renovate your universities school building adding two layers
Location: Coolhaven, Rotterdam
Design Principles School
Restoring the building’s spatial order
Designing new layers whilst conserving the rhythm of the façade by applying congruent design elements sourced from the surroundings
Redevelop the baseboard of the building.
Final result
Reachability analysis
Functional analysis ground floor, current state
Vertical structural analysis original structure
Horizontal structural analysis
Renovation first varient - ground floor
Renovation first varient - first floor
Inspiration | Tate museum - Herzog & de Meuron
Impression dubbel hight - First floor
Library impression
Gallery impression
Roof terras impression
Final render
Final render
Ground floor
First floor
Second floor
Third floor

